Прима 2Заказать
Название проекта: Дачный дом Прима 2
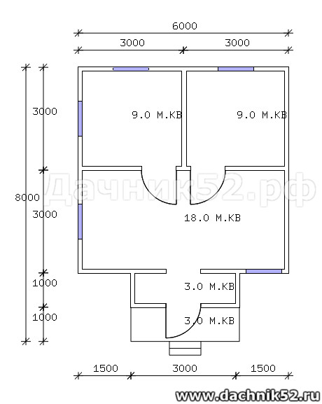
Размеры дома: 6,0 х 6,0
Площадь дома: 42 м.кв
Срок строительства: 20 - 25 дней
| Комплектации | Утеплённый | Зимний дом |
| Проживание | Сезонное | Круглогодичное |
| Фундамент | Винтовые сваи | Винтовые сваи |
| Высота потолка | 2,4м | 2,4м |
| Наружная отделка | Имитация бруса 110х13мм | Имитация бруса 110х13мм |
| Внутренняя отделка | Вагонка | Вагонка |
| Настил пола | Шпунтованная доска 27мм | Шпунтованная доска 35мм |
| Утепление толщина | 100мм | 150мм |
| Кровля | Профнастил крашеный | Профнастил крашеный |
| Окна | Пластиковые 0,8 х 1,0 | Пластиковые 1,0 х 1,0 |
| Дверь входная | Железная пр-во Россия | Железная пр-во Россия |
| Двери внутренние | Деревянные филенчатые | Деревянные филенчатые |
| Антисептик | Нижняя обвязка в 1 слой | Нижняя обвязка в 1 слой |
| Цена дома | 830.000-00 | 910.000-00 |
Дополнительные услуги:
. Установка печи или камина с варочной поверхностью
. Отделка дома сайдингом
. Увеличение размеров окон, добавление окна
. Электрика и подключение к эл. столбу
. Подключение сантехники, канализации наружной и внутренней, септик
. Установка чердачной складной лестницы
. Обработка каркаса дома антисептиком
. Установка водостоков
Памятка Заказчику:
Для выполнения работ по строительству одноэтажного каркасного дома 6 на 6 нам нужен свет 220 вольт, доступ к воде (скважина, колодец, привозная), проживание на объекте (старый дом, баня) или бытовка. Если нет возможности предоставить место под проживание бригады рабочих, мы привезём строительную бытовку.
- Паули 4
7 х 101260 000 руб.
- Паули 5
7 х 101260 000 руб.
- Паули 3
8 х 101440 000 руб.
- Хитчинс
7,5 х 11,51496 000 руб.
- Соло 21
8 х 81150 000 руб.
- Акация 2
6 х 91190 000 руб.
- Родник 6
9 х 91388 000 руб.
- Оринки
7 х 111386 000 руб.
- Соло 29
6 х 6790 000 руб.
- Г образный Прима 9
4 х 8800 000 руб.
- Дачный дом 6 х 10
6 х 101200 000 руб.
- Каменки
6 х 8880 000 руб.
- Соло 19
4 х 6690 000 руб.
- Соло 20
7 х 7925 000 руб.
- Соло 24
6 х 7890 000 руб.
- Родник гостевой
6 х 6900 000 руб.
- Соло 27
6 х 9980 000 руб.
- Паули 2
7 х 9,51198 000 руб.
- Прима 4
7 х 121680 000 руб.
- Соло 22
5 х 8810 000 руб.
- Соло 23
6 х 7,5899 000 руб.