Каркасный дом ВикингЗаказать
Название проекта: Каркасный дом полтора этажа Викинг
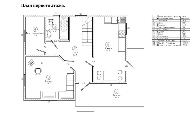
Размеры дома: 7,5 х 9,0
Общая площадь дома: 102 кв.м
Срок строительства: 40 - 45 дней
Помещения: кухня, кабинет, санузел, бойлерная, холл, две спальни
Комплектации | Утеплённый сезонный | Зимний дом |
Проживание | Межсезонье | Круглогодичное |
Тип фундамента | Винтовые сваи | Винтовые сваи |
Высота потолка | 2,4м / 2,1м | 2,4м / 2,1м |
Наружная отделка | Имитация бруса 110х13м | Имитация бруса 110х13 |
Внутренняя отделка | Вагонка | Вагонка |
Настил пола | Шпунтованная доска 27мм | Шпунтованная доска 35мм |
Утепление толщина | 100 мм. два этажа | 150 мм. два этажа |
Кровля | Профнастил крашеный | Металлочерепица |
Окна | Пластиковые однокамерные | Пластиковые двухкамерные |
Дверь входная | Железная пр-во РФ, утеплённая | Железная пр-во РФ, утеплённая |
Двери межкомнатные | Деревянная МДФ | Деревянные филенчатые |
Лестница на второй этаж | Поворотная с балясинами | Поворотная с балясинами |
Технология сборки | Каркасная | Каркасная |
Стоимость дома под ключ | 1.830.000-00 | 2.050.000-00 |
Что у нас можно заказать дополнительно:
. Изменение предлагаемой планировки
. Электрика
. Разводка и подключение сантехники, канализации наружной и внутренней
. Монтаж септика из жб колец или автономную канализацию
. Монтаж системы отопления, с современной системой управления котлом GSM
. Установка современной отопительной печи или камина
. Наружная отделка виниловым сайдингом
Как заказать каркасный дом:
Если Вы находитесь в Нижегородской области, воспользуйтесь услугой бесплатный выезд менеджера для заключения договора строительства каркасного дома. Заказчик, находящийся в другом городе, может позвонить или оставить заявку на сайте, в ближайшее время мы свяжемся. Более подробно здесь.
Как оплатить строительство каркасного дома::
. Возможна рассрочка без банка
. Безналичный
. Оплата части стоимости дома с помощью средств материнского капитала
- Кремёнки 55
7 х 72700 000 руб.
- Балчуг 22
6 х 81600 000 руб.
- Кремёнки 48
6 х 61450 000 руб.
- Кремёнки 30
6 х 61290 000 руб.
- Кремёнки 31
6 х 61290 000 руб.
- Кремёнки 33
6 х 61290 000 руб.
- Балчуг 19
6 х 8,51450 000 руб.
- Аист 20
6 х 61030 000 руб.
- Лана - второй свет
6 х 91650 000 руб.
- Балчуг 2
6 х 61275 000 руб.
- Дуплекс полтора этажа
5 х 7,51520 000 руб.
- Дуплекс полтора этажа
6 х 81740 000 руб.
- Кремёнки 7
5 х 61120 000 руб.
- Аист 11
5 х 6998 000 руб.
- Аист 8
5 х 5,5920 000 руб.
- Аист 9
5 х 5,5890 000 руб.
- Искона
7 х 7,52250 000 руб.
- Полтора этажа Кремёнки 21
5 х 81480 000 руб.
- Балчуг 18
6 х 81685 000 руб.
- Кремёнки 24
6 х 71599 000 руб.
- Комфорт Т - 8
8 х 82170 000 руб.