Каркасный дом Стриж 2Заказать
Название проекта: Дачный дом Стриж 2
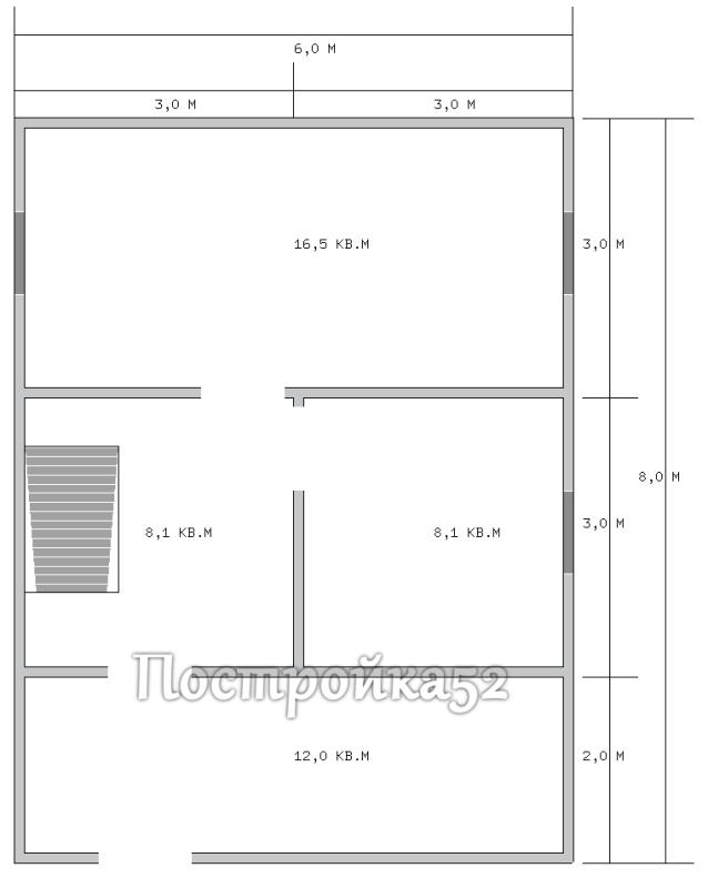
Размеры дома: 6,0 х 6,0
Веранда 2,0х 6,0
Общая площадь дома с верандой: 74 кв.м
Срок строительства: 20 - 25 дней
Дачный дом 6х6 с мансардой, верандой. Балкон можно не заказывать.
Варианты | Утеплённый | Зимний дом |
Проживание | Сезонное весна-осень | Круглогодичное |
Фундамент | Винтовые сваи | Винтовые сваи |
Высота потолка | 2,4м / 2,2м | 2,4м / 2,2м |
Наружная отделка | Имитация бруса | Имитация бруса |
Внутренняя отделка | Вагонка | Вагонка |
Настил пола | Шпунтованная доска 27 | Шпунтованная доска 35 |
Утепление толщина | 100м два этажа | 150мм два этажа |
Кровля | Профнастил крашеный | Металлочерепица |
Окна | Пластиковые | Пластиковые |
Дверь входная | Железная пр-во Россия | Железная пр-во Россия |
Антисептирование | За доп. плату | Нижняя обвязка в 1 слой |
Лестница на мансарду | С балясинами | С балясины, ограждение |
Технология сборки | Каркасная 50х100 | Каркасная 50х150 |
Цена дома под ключ | 1.270.000-00 | 1.400.000-00 |
Вы можете заказать дополнительные услуги:
. Зеркальная планировка - бесплатно
. Антисептическая обработка нижней обвязки или силового каркаса
. Установка дровяной современной печи
. Разводка электрики, отопления и канализации, установка септика
. Обработка наружной отделки краской или лаком
. Увеличение высоты потолков первого и мансардного этажа
. Отделка наружной части дома сайдингом
. Утепление 200мм.
Как заказать построить каркасный дом?
Позвоните нам по телефону, закажите бесплатный выезд менеджера для заключения договора. Лучше приехать сразу на участок для осмотра места установки дома. Вы можете на месте внести изменения в проект дома, зафиксировав это в договоре, сделать предоплату менеджеру, обговорить сроки начала строительства и окончания.
Что нужно нам для выполнения работ:
Для выполнения работ нам нужно электричество(розетка), доступ к воде (скважина, колодец, привозная), проживание на объекте (старый дом, баня) или бытовка. Если нет возможности предоставить место под проживание бригады рабочих, мы обеспечим проживание на срок строительства. Подъездные пути и место под материал. Заказчик должен предусмотреть увеличение площади пятна застройки с каждой стороны будущего дома примерно на 1,5м для выполнения работ, установки строительных лесов, подачи материалов на второй этаж и тп...
Защита интересов нашего заказчика:
1. Финансовая безопасность!
2. Контроль качества материалов!
3. Пока идёт строительство дома если есть вопросы - 7 дней в неделю доступен для звонка старший по объекту!
4. Гарантия выполнения работ по договору!
- Кремёнки 55
7 х 72700 000 руб.
- Балчуг 22
6 х 81600 000 руб.
- Кремёнки 48
6 х 61450 000 руб.
- Кремёнки 30
6 х 61290 000 руб.
- Кремёнки 31
6 х 61290 000 руб.
- Кремёнки 33
6 х 61290 000 руб.
- Балчуг 19
6 х 8,51450 000 руб.
- Аист 20
6 х 61030 000 руб.
- Лана - второй свет
6 х 91650 000 руб.
- Балчуг 2
6 х 61275 000 руб.
- Дуплекс полтора этажа
5 х 7,51520 000 руб.
- Дуплекс полтора этажа
6 х 81740 000 руб.
- Кремёнки 7
5 х 61120 000 руб.
- Аист 11
5 х 6998 000 руб.
- Аист 8
5 х 5,5920 000 руб.
- Аист 9
5 х 5,5890 000 руб.
- Искона
7 х 7,52250 000 руб.
- Полтора этажа Кремёнки 21
5 х 81480 000 руб.
- Балчуг 18
6 х 81685 000 руб.
- Кремёнки 24
6 х 71599 000 руб.
- Комфорт Т - 8
8 х 82170 000 руб.