Каркасный дом Балчуг 4Заказать
Название проекта: Балчуг 4
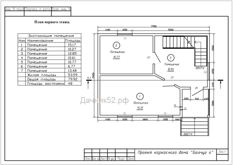
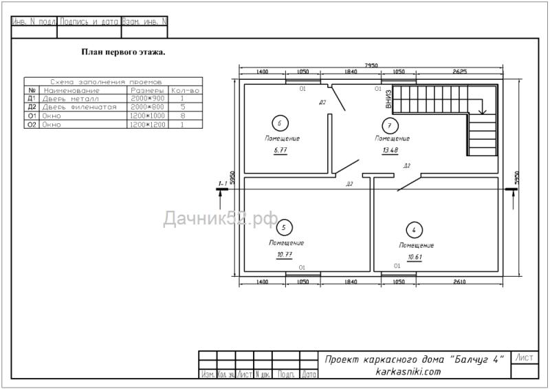
Размеры дома: 6,0 х 8,0
Площадь дома: 96 кв.м
Срок строительства: 30 - 40 дней
Помещения: крыльцо, прихожая, кухня гостевая, три спальни.
Комплектации | Сезонный | Зимний дом |
Проживание | Весна-осень | Круглогодичное |
Фундамент | Винтовые сваи | Винтовые сваи |
Высота потолка | 2,4м / 2,1м | 2,4м / 2,1м |
Наружная отделка | Имитация бруса 110х13 | Имитация бруса 110х13 |
Внутренняя отделка | Вагонка | Вагонка |
Настил пола | Шпунт.. доска 27мм | Шпунт.. доска 35мм |
Утепление | 100м 2 этажа | 150мм 2 этажа |
Кровля | Профнастил крашеный | Профнастил крашеный |
Окна | Пластиковые 1,0 х 1,0 | Пластиковые 1,0 х 1,2 |
Дверь входная | Железная пр-во Россия | Железная пр-во Россия |
Двери межкомнат | Филенчатые | Филенчатые |
Лестница | Балясины ограждение | Балясины ограждение |
Цена дома | 1.720.000-00 | 1.920.000-00 |
Вы можете заказать дополнительные услуги:
. Разводка электрики, отопления и канализации, установка септика
. Увеличение высоты потолков первого и мансардного этажа
. Отделка наружной части дома сайдингом
. Добавление окон, перегородок, пристройка веранды.
. Фундамент из забивных жб свай
. Установка печи камина с плитой
Другие проекты этой категории
- Кремёнки 55
7 х 72700 000 руб.
- Балчуг 22
6 х 81600 000 руб.
- Кремёнки 48
6 х 61450 000 руб.
- Кремёнки 30
6 х 61290 000 руб.
- Кремёнки 31
6 х 61290 000 руб.
- Кремёнки 33
6 х 61290 000 руб.
- Балчуг 19
6 х 8,51450 000 руб.
- Аист 20
6 х 61030 000 руб.
- Лана - второй свет
6 х 91650 000 руб.
- Балчуг 2
6 х 61275 000 руб.
- Дуплекс полтора этажа
5 х 7,51520 000 руб.
- Дуплекс полтора этажа
6 х 81740 000 руб.
- Кремёнки 7
5 х 61120 000 руб.
- Аист 11
5 х 6998 000 руб.
- Аист 8
5 х 5,5920 000 руб.
- Аист 9
5 х 5,5890 000 руб.
- Искона
7 х 7,52250 000 руб.
- Полтора этажа Кремёнки 21
5 х 81480 000 руб.
- Балчуг 18
6 х 81685 000 руб.
- Кремёнки 24
6 х 71599 000 руб.
- Комфорт Т - 8
8 х 82170 000 руб.