Балчуг 2Заказать
Название проекта: Балчуг2
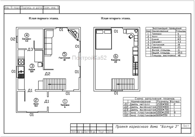
Размеры: 6,0 х 6,0
Терраса 2,0 х 6,0
Срок строительства: 25 - 30 дней
Общая площадь: 72 кв.м.
Дачный каркасный дом 6 х 6 с мансардой и террасой Балчуг2.
Варианты | Утеплённый | Зимний дом |
Проживание | Сезонное весна-осень | Круглогодичное |
Фундамент | Винтовые сваи | Витовые сваи |
Высота потолка | 2,4м / 2,1м | 2,4м / 2,1м |
Наружная отделка | Имитация бруса 110х13 | Имитация бруса 110х13 |
Внутренняя отделка | Вагонка | Вагонка |
Настил пола | Шпунтованная доска 27мм | Шпунтованная доска 35мм |
Утепление толщина | 100м два этажа | 150мм два этажа |
Кровля | Профнастил крашеный | Металлочерепица |
Окна | Пластиковые 1,0 х 1,0 | Пластиковые 1,0 х 1,0 |
Дверь входная | Железная пр-во Россия | Железная пр-во Россия |
Двери межкомнат | Деревянные филенчатые | Деревянные филенчатые |
Антисептирование | Нижняя обвязка 1 слой | Нижняя обвязка в 1 слой |
Лестница | Балясины, ограждение | Балясины, ограждение |
Цена дома | 1.275.000-00 | 1.440.000-00 |
Вы можете заказать дополнительные работы:
1. Антисептическая обработка силового каркаса
2. Разводка электрики, отопления и канализации, установка септика
3. Обработка наружной отделки сайдингом, блокхаусом, хауберг и тд...
4. Установка печи с варочной панелью
Как заказать строительство дома:
Позвоните нам по телефону, закажите бесплатный выезд менеджера для заключения договора. Лучше приехать сразу на участок для осмотра места установки дома. Вы можете на месте внести изменения в проект дачного дома, указав это в договоре, сделать предоплату менеджеру, обговорить сроки начала строительства и окончания.
- Кремёнки 55
7 х 72700 000 руб.
- Балчуг 22
6 х 81600 000 руб.
- Кремёнки 48
6 х 61450 000 руб.
- Кремёнки 30
6 х 61290 000 руб.
- Кремёнки 31
6 х 61290 000 руб.
- Кремёнки 33
6 х 61290 000 руб.
- Балчуг 19
6 х 8,51450 000 руб.
- Аист 20
6 х 61030 000 руб.
- Лана - второй свет
6 х 91650 000 руб.
- Дуплекс полтора этажа
5 х 7,51520 000 руб.
- Дуплекс полтора этажа
6 х 81740 000 руб.
- Кремёнки 7
5 х 61120 000 руб.
- Аист 11
5 х 6998 000 руб.
- Аист 8
5 х 5,5920 000 руб.
- Аист 9
5 х 5,5890 000 руб.
- Искона
7 х 7,52250 000 руб.
- Полтора этажа Кремёнки 21
5 х 81480 000 руб.
- Балчуг 18
6 х 81685 000 руб.
- Кремёнки 24
6 х 71599 000 руб.
- Комфорт Т - 8
8 х 82170 000 руб.